TZLM-01型自力式流量调节器

自力式流量调节器是由调节器和玻璃转子流量计构成一体的流量调节仪表,它无需外界提供动能,依靠流体本身的能量,使被测流体压力稳定,从而实现流量控制和测量。可广泛应用于被测流体压力有较大变化的场合。
1. 主要技术参数
(1) 控制和测量范围 :
水 (20 ℃ ) 0.15 ~ 160L/h
空气 (1.013 × 10 5 Pa,20 ℃ ) 3 ~ 1600L/h
(2) 范围度 :10:1
(3) 准确度等级 :2.5;4
(4) 调节性能 : 输入压力变化± 10%, 输出流量变化小于± 1%
(5) 工作条件 : 温度 0 ~ 60 ℃,相对湿度 <80%
2. 型号规格见表 1
表 1
型号 |
测量流体 |
控制和测量
范围 |
准确度
等级 |
允许被测流体状况 尺寸 mm |
温度 ℃ |
压力 MPa |
A |
B |
C |
D |
TZLM-01-Q1 |
气体 |
0.05 ~ 0.5L/min
0.1 ~ 1L/min
0.15 ~ 1.5L/min
0.2 ~ 2L/min |
4 |
0 ~ 60 |
0.02 ~ 0.15 |
26 |
21 |
- |
- |
气体 |
0.3 ~ 3L/min
0.5 ~ 5L/min
0.7 ~ 7L/min
1 ~ 10L/min
1.5 ~ 15L/min |
29 |
30 |
TZLM-01-Q2 |
气体 |
16 ~ 160L/h
25 ~ 250L/h
40 ~ 400L/h
60 ~ 600L/h
100 ~ 1000L/h |
2.5 |
0.03 ~ 0.25 |
36 |
43.5 |
171 |
180 |
160 ~ 1600L/h
250 ~ 2500L/h |
0.05 ~ 0.25 |
43 |
224 |
253 |
TZLM-01-Y1 |
液体 |
2.5 ~ 25ml/min
6 ~ 60ml/min |
4 |
0.03 ~ 0.15 |
26 |
21 |
- |
- |
TZLM-01-Y2 |
1 ~ 10L/h
1.6 ~ 16L/h
2.5 ~ 25L/h
4 ~ 40L/h
6 ~ 60L/h |
2.5 |
0.03 ~ 0.25 |
36 |
43.5 |
171 |
180 |
10 ~ 100L/h
16 ~ 160L/h |
43 |
244 |
253 |
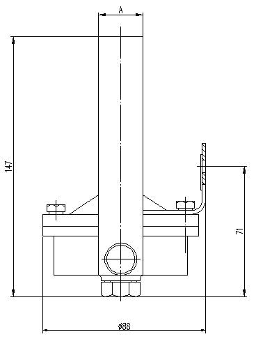
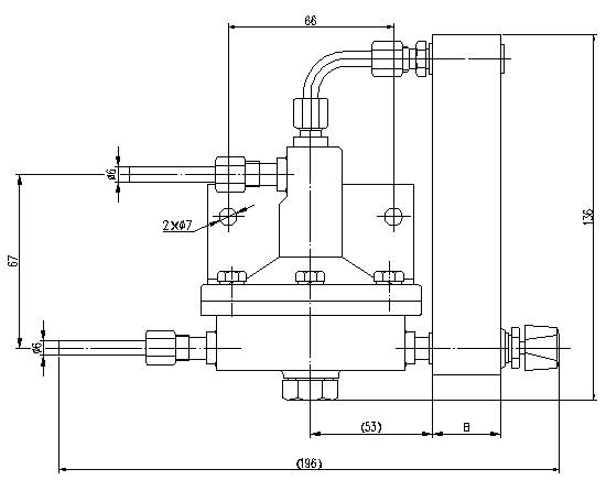
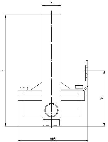
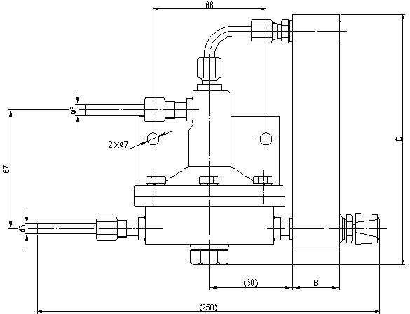
3. 外形及安装尺寸见下图和表 1


TZLM-01-Q1 TZLM-01-Y1自立式流量调节器外形图


TZLM-01-Q2 TZLM-01-Y2自立式流量调节器外形图
LZC 系列吹扫装置

一、概述
LZC 系列吹扫装置, 是由本公司生产的金属管浮子流量计和恒流控制阀组成, 在系统中实现恒流量输出设定、控制和指示。可广泛应用于石油炼制、化工、乙烯、化肥、钢铁、化纤纺织等行业变送器的吹扫、差压法液位测量等过程控制中。
二、测量原理
恒流控制阀由一个调节阀和一个平衡控制阀组成, 恒流控制阀流量的大小取决于连接
在膜片上阀门的位置, 在没有介质流量时, 调节阀前后没有差压, 膜片只受弹簧力打开平衡控制阀门, 当流体流过时, 调节阀前后产生差压 P1-P2 , 该差压同时作用在膜片上, 与弹簧力相反, 使阀门适当关闭。根据平衡原理, 弹力等于调节阀前后两端的压差在膜片产生的压力, 使得介质流量恒定不变。通过调节阀来改变流量设定值。
应用于气体或者蒸气时,由于气体是可压缩的, 精确的控制流量是以恒流控制阀上的压力为恒定值, 依据恒流控制阀设置位置分为两种型式:
● RE 型 流量控制器设置在上游, 用于气体或蒸气时,适用于流量控制器出口压力为一恒定值或排放到大气中去的场合。
● RA 型 流量控制器设置在下游, 用于气体或蒸气时,适用于流量控制器出口压力为一恒定值的场合。用于液体场合时, 两种型号的效果相同。
三、 型号命名
LZC A – B / C / D / E
A 配用流量计 |
B 流量控制阀位置 |
C 用户端连接方式 |
1 |
LZZW 型金属管浮子流量计 |
RE |
入口压力调节器 |
F |
法兰( HG20592 ) |
2 |
LZZ 型金属管浮子流量计 |
RA |
出口压力调节器 |
S |
螺纹连接 NPT |
3 |
DK800 玻璃转子流量计 |
|
|
K |
卡套连接 |
D 接触介质材质 |
E 附件 |
|
RR1 |
1Cr18Ni9Ti |
P |
带有压力表 |
|
|
RRO |
316 |
G |
带有过滤器 |
|
|
RL |
316L |
|
|
|
|
四、主要技术参数
型号 |
LZC1 |
LZC2 |
测量范围 |
水( 20 ℃) |
0.3-100L/H |
2.5-4000L/H |
空气( 20 ℃ 101325Pa ) |
5-3400L/H |
0.07-110m3/h |
量程比 |
10:1 |
精确度等级 |
4 级 |
2.5 级 |
流量刻度划分 |
实际流量刻度 |
小要求压差 |
0.05MPa |
大可控压差 |
0.5MPa |
大压力 |
4.0MPa 或按照用户要求 |
介质温度 |
-80+150 ℃ |
环境温度 |
-25+65 ℃ |
接触介质材质 |
304 、 316 、 316L 和 PTFE 密封垫 |
外壳 |
铸铝、环氧树脂喷涂 |
连接 |
标准螺纹 |
1/4”NPT 或 1/2”NPT 阴螺纹 |
1/2”NPT 或 1”NPT 阴螺纹 |
标准卡套 |
Φ 6 、φ 8 、φ 10mm |
φ 12mm |
标准法兰 |
HG20592-97 DN15 、 DN25 或按用户要求 |
五、测量范围
1. LZC1 型吹扫装置
锥管号 |
水
( 20 ℃ L/H ) |
空气
( 20 ℃ 101325Pa L/H ) |
大压力损失 ( KPa ) |
W01 |
-- |
1.2-12 |
1.0 |
W02 |
-- |
5-50 |
1.2 |
W03 |
0.3-3 |
10-100 |
1.4 |
W04 |
0.5-5 |
15-150 |
1.5 |
W05 |
1-10 |
40-400 |
1.8 |
W06 |
2.5-25 |
80-800 |
3.5 |
W07 |
4-40 |
125-1250 |
6.5 |
W08 |
6-60 |
200-2000 |
13.0 |
W09 |
8-80 |
250-2500 |
23.5 |
W10 |
10-100 |
340-3400 |
40.0 |
2. LZC2 型吹扫装置
通径 DN (mm) |
流量范围 |
大压力损失 |
空气( 20 ℃ 101325Pa ) m3/h |
水( 20 ℃) L/H |
空气( KPa ) |
水( KPa ) |
15 |
0.07-0.7 |
2.5-25 |
7.1 |
6.5 |
0.11-1.1 |
4-40 |
7.2 |
6.5 |
0.18-1.8 |
6-60 |
7.3 |
6.6 |
0.28-2.8 |
10-100 |
7.5 |
6.6 |
0.40-4.0 |
16-160 |
8.0 |
6.8 |
0.70-7.0 |
25-250 |
10.8 |
7.2 |
1.0-10.0 |
40-400 |
10 |
8.6 |
1.6-16 |
60-600 |
14 |
11.1 |
25 |
3-30 |
100-1000 |
7.7 |
7 |
4.5-45 |
160-1600 |
8.8 |
8 |
7-70 |
250-2500 |
12 |
10.8 |
11-110 |
400-4000 |
19 |
15.8 |
六、典型应用
1. 在供气压力变化下的典型应用
如右图所示,将主管道气源提供气体, 根据需要可分成多支路, 若关闭或调整其中的几个支路气体流量时,将引起主管道的供气压力发生变化, 安装于支路上的单路吹扫装置, 可以准确测量流量并保持其输出流量恒定。
推荐产品型号: LZC1/RE
LZC2/RE

2. 在出口压力变化下的典型应用—液位测量
如右图所示, 从 A 端输入恒定流量的气体时, 气体将排出插入液体内管道内介质形成稳定气泡,此时 A , B 间的管内压力与 B 端口液体压力相等。
若 B 处压力为 P1 , 大气压力为 P0 , 则 P1-P0= △ P, 同时 P1= γ h+P0, 则 P1-P0= △ P= △ P 。
因此已知介质密度的条件下, 利用差压变送器或压力计测量出△ P , 即可测量出液体液位 h 。
推荐产品型号: LZC1/RA
LZC2/RA

3. 出口压力变化条件下的典型应用—密度测量
如右图所示, 如果已知被测介质液位 H1 与参考介质液位 H2 , 已知参考介质密度γ 2 , 利用差
压变送器测量压差, 就可以测量出被测介质密度γ 1 。
推荐产品型号: LZC1/RA
LZC2/RA

4 .差压变送器测量流量时的典型应用
当用孔板与差压变送器测量腐蚀性或含有固体颗粒的液体或含有粉尘的气体时, 引压毛细管就
有被堵塞的可能,采用双回路吹气装置吹洗两个压力孔, 就可以确保液体、固体颗粒或粉尘不
会进入或堵塞压力孔或引压管。
推荐产品型号: LZC1/RE
LZC2/RE

|