金属管浮子流量计 一、概述 LZ 系列金属管浮子流量计采用可变面积式测量原理,可对多种流向的气体和液体进行测量。 本系列流量计规格品种安全,有指示型、电远传型、耐腐型、夹套型、防爆型等多种产品,电远传型具有 0 ~ 10mA 和 4 ~ 20mA 的标准模拟量信号输出,可与 DDZ- Ⅱ 或 DDZ- Ⅲ 电动单元组合仪表配套使用,同时具有现场累积、数字通讯、现场修改测量参数、不同的供电方式等功能,并可为用户专门制造其它法兰尺寸、较高工作压力及带有磁过滤器特殊规格品种、广泛应用石油、化工、发电、食品、制药、水处理等领域。 LZ 系列金属管浮了流量计主要由两部分组成: 1 传感器; 2 转换器。传感器将流量的大小转换成浮子的位移量,通过磁耦合系统,将浮子位移量传给转换器指示出流量的大小,转换器有 M1 和 M2 两种结构形式,配装不同的变送器组成了不同的功能组合。 二、技术参数 1. 测量范围 水( 20 ℃) 2.5 ~ 160000L / h 空气 (20 ℃, 0.101325MPa) 0.07 ~4000m 3 / h 2. 量程比 10:1 3. 精确度 1.5 级 ;2.5 级 4. 流体工作压力 DN15 ~ DN50 :4.0MPa;DN80 ~ DN100:1.6MPa 夹套工作压力 1.6MPa 5. 流体工作温度 -80 ~ 250 ℃ 6. 连接方式 法兰连接或螺纹连接 , 法兰标准用 GB / T9119;ANSI 150 l bs 、 300 l bs; HG20592 ~ 20635; 也可按用户要求定制药其它标准法兰。 7. 环境温度 -25 ~ +55 ℃ 8. 接线电缆 RVVP 3X28 / 0.15 9. 介质粘度 DN15 ≤ 5mpa.s; DN25 ~ DN100 ≤ 250mpa.s 10. 电信号输出 输出信号 :0 ~ 10mA,4 ~ 20mA 线性度 :1% 温度影响 :0.5%/10 ℃ 电源电压 :13~30VDC 电源消耗 : ≤ 250mW 11. 限位报警 供电电源 :220VAC ± 10% 功耗 : ≤ 3W 工作温度 :-25 ~ 60 ℃ 12. 防爆等级 : ib Ⅱ CT5 防爆证号 : GYB01319 推荐配用安全栅 :LB906 三、安装形式
注 :Es1 型是通过与指针同轴的凸轮将瞬时流量信号传递给转角变送器 , 输出正比线性的电流信号 ; Es2 型为非接触式 , 通过磁敏元件和软件修正来输出与瞬时流量成正比的线性电流信号。 五、转换器形式
六、流量范围
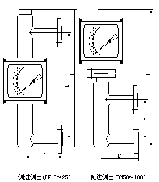
七、外形及安装尺寸
夹套连接法兰标准为 :GB / T9119 PN1.6 DN15 八、安装 流量计应垂安装,流量计中心线与铅垂线的夹角不超过 5 °,在流量计的上游须保证五倍公称通径的入口直管段,下游保证 250mm 出口直管段。如果介质中含有固体杂质,应在流量计上游加装过滤器;如果介质中含有铁磁性物质,应在流量计的上游安装磁过滤器。为了便于维护和清洗且不影响生产,建议安装旁通管路。为了避免由于管道引起的流量计变形,安装法兰必须与仪表同轴并且相互平行,并适当地支撑管道以避免管道振动和减小流量计的轴向负荷,测量系统中控制阀应安装在流量计的下游。用于测量气体时,应保证管道压力不小于 5 倍流量计的压力损失,以使浮子稳定工作。
九、附件 可为用户提供前后直管段、配对法兰、磁过滤器、气体阻尼装置等附件。如果介质中含有铁磁性颗粒,就应在流量计入口处安装磁过滤器。磁过滤器中装有以螺旋方式排列的磁棒,以大限度地减小压力损失,每个磁棒均由 PTFE 聚四氟乙稀包裹,防止介质的腐蚀。 磁过滤器的结构见图:
磁过滤器结构 衬 PTFE 磁过滤器结构 十、电远传接线图 输出信号: 0 ~ 10mA, 4 ~ 20mA 线性度: 1% 温度影响: 0.5%/10 ℃ 电源电压: 13 ~ 30V DC 电源消耗:≤ 250mW 负载阻抗:见图
十一、限位开关报警装置 限位开关报警装置在指示器中的部分由感应头、铝片等组成,感应头被安装在能被指针轴上的铝片切割的位置,通过改变感应头的位置可以任意设定限位值。感应头输出信号给金属转子流量指示控制仪。 技术参数 1. 供电电源: 220V AC ± 10% 2. 功耗:≤ 3W 3. 工作温度: -25 ℃~ 60 ℃ 4. 输出触点容量: 220VAC 3A 接线图
报警点的改变须打开前盖 , 松开刻度盘上的小指针的螺钉 , 调整到需要的位置后 , 再将螺钉紧固 , 后装好前盖。 十二、防爆产品使用注意事项 电远传系列金属管浮子流量计,经国家级仪器仪表防爆安全监督检验站( NEPSI )检验,符合 GB3836.1 和 GB3836.4 标准规定的要求 , 产品防爆标志为 ib Ⅱ CT5, 防爆合格证号为 GYB01319 。用户在使用产品时应注意下列事项: 1. 金属管浮子流量计外壳设有接地端子 , 用户在使用时应可靠接地。 2. 金属管浮子流量计的大使用环境温度范围为 -20 ℃~+ 55 ℃。 3. 电远传系列金属管浮子流量计必须与 LB906 齐纳安全栅配套使用构成本安防爆系统。系统接线如图所示: 4. 本安系统的布线应尽量避免外界电磁干扰的影响 , 并将电缆分布参数控制在 0.008uF 和 2mH 以内。 5. 安全栅必须安装在安全场所 . 安全栅的安装、使用和维护应遵守安全栅使用说明书。 6. 与安全栅相连的控制仪表的高工作电压或其电路内部可能产生的高电压不得高于 250VRMS 。 7. 用户在安装、使用和维护电远传系列金属管浮子流量计时,务必认真阅读产品使用说明书,并同时严格遵守《中华人民共和国爆炸危险场所电气安全规程(试行)》。 十三、设计选用及订货须知 1. 根据测量流体是气体或液体 , 正确远用气体或液体金属管浮子流量计。 2. 被测流体无腐蚀性选用普通型,有腐蚀性选用耐腐型。 3. 订货时请注明被测介质名称、流量、管道通径及工作压力、温度、密度、粘度等情况。我公司根据用户提出的密度等进行刻度修正,制作特殊的流量标尺。 4. 根据被测流体的测量范围、应用场合等选择合适型号的规格品种。如有特殊要求的流量计,请来公司或来函与销售部联系。 |


























